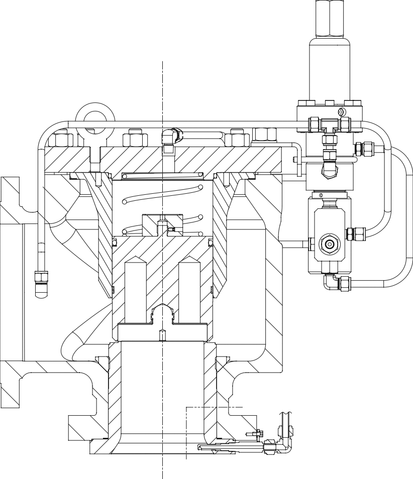
Pressure safety valve
Safety valves are designed to protect pipelines, vessels and other equipment from overpressure, preventing possible accidents and damage. These valves automatically open when the set pressure limit is exceeded, releasing excess pressure, and close when the system pressure is reduced to a safe level.
Safety valves come in 3 types:
• spring-loaded valves,
• pilot valves,
• safety valve blocks.

Specifications:
Size: Safety valves and blocks are available in various sizes for different applications.
Pressure class: Includes various classes that meet the needs of specific systems.
Execution Standard: Standards such as API 520 (for safety valves in the oil and gas industry) and API 526 (for flanged steel safety valves).
Body Material: Made from a variety of materials, including carbon steel, stainless steel and special alloys.
Material of the main internal elements: stainless steel and other alloys are often used to provide strength and corrosion resistance.
Pipeline connection type: Ranges from flanged to threaded connections.
Control type: Automatic response to pressure.
Climate version: suitable for use in various operating conditions.
Additional tests: include tests for reliability and efficiency of operation under high pressures and temperatures.
Systems such as safety valves and safety valve blocks play an important role in ensuring the safety and reliability of industrial processes, preventing the risks associated with overpressure.